Caractéristiques
-
Surface 174 m²
-
Surface habitable 174 m²
-
Surface terrain 1130 m²
-
Surface sejour 47 m²
-
Nombre de pièces 7
-
Nombre de chambres 5
-
Nombre de salles de bain 1
-
Nombre de salles d'eau 1
-
Nombre de toilettes 3
-
Nombre de parkings 3
-
Nombre de parkings couverts 2
-
Terrasse 1
-
Climatisation Oui
-
Nombre d' étages 3
-
Nombre de niveaux 3
-
Annee construction 1999
Description
Mandat 166
Pietrapolis Ornex vous proposer en exclusivité cette maison individuelle à Péron !
Cette villa individuelle de 1999 comprenant une surface d'environ 174m2 avec une parcelle d'environ 1'130m2.
Proche des commodités et axes autoroutiers cette propriété est composée de la manière suivante :
Trois niveaux comprenant un sous-sol complet, un rez-de-chaussée et un premier étage.
Au rez-de-chaussée :
-Une entrée distribuant, un très grand salon/séjour avec sa cuisine ouverte, la surface de l'ensemble est d'environ 57m2 !
Un accès à la terrasse depuis le salon avec une vue Alpes.
-Une chambre avec placard intégré et une salle d'eau avec Wc complète cet ensemble
-Chauffage au sol pour le rez-de-chaussée
Au 1er étage :
-Un dégagement donnant accès à quatre chambres, dont une avec climatisation et balcon privatif avec une vue époustouflante sur les Alpes, une salle de bains avec baignoire et douche et son wc, un bureau et un wc indépendant complète cet ensemble.
-Au sous-sol :
-Un garage avec porte sectionnelle automatique, un atelier, une buanderie avec adoucisseur d'eau, une cave à vin complète ce niveau.
A l'extérieur :
Parcelle d'environ 1'130m2, terrasse avec pergola et autobloquant au sol. Vous pourrez profitez de cet extérieur avec une surface généreuse et au calme.
Un abri de jardin complète l'ensemble.
Borne de recharge électrique à l'extérieur.
Honoraires charge acquéreur 3.5%TTC
Pour plus de détails contactez Yan Thevenet au 06.71.70.05.25 ou y.thevenet@pietrapolis.fr ou Matthieu Vizioz au 06.73.96.73.21 ou m.vizioz@pietrapolis.fr
Cette villa individuelle de 1999 comprenant une surface d'environ 174m2 avec une parcelle d'environ 1'130m2.
Proche des commodités et axes autoroutiers cette propriété est composée de la manière suivante :
Trois niveaux comprenant un sous-sol complet, un rez-de-chaussée et un premier étage.
Au rez-de-chaussée :
-Une entrée distribuant, un très grand salon/séjour avec sa cuisine ouverte, la surface de l'ensemble est d'environ 57m2 !
Un accès à la terrasse depuis le salon avec une vue Alpes.
-Une chambre avec placard intégré et une salle d'eau avec Wc complète cet ensemble
-Chauffage au sol pour le rez-de-chaussée
Au 1er étage :
-Un dégagement donnant accès à quatre chambres, dont une avec climatisation et balcon privatif avec une vue époustouflante sur les Alpes, une salle de bains avec baignoire et douche et son wc, un bureau et un wc indépendant complète cet ensemble.
-Au sous-sol :
-Un garage avec porte sectionnelle automatique, un atelier, une buanderie avec adoucisseur d'eau, une cave à vin complète ce niveau.
A l'extérieur :
Parcelle d'environ 1'130m2, terrasse avec pergola et autobloquant au sol. Vous pourrez profitez de cet extérieur avec une surface généreuse et au calme.
Un abri de jardin complète l'ensemble.
Borne de recharge électrique à l'extérieur.
Honoraires charge acquéreur 3.5%TTC
Pour plus de détails contactez Yan Thevenet au 06.71.70.05.25 ou y.thevenet@pietrapolis.fr ou Matthieu Vizioz au 06.73.96.73.21 ou m.vizioz@pietrapolis.fr
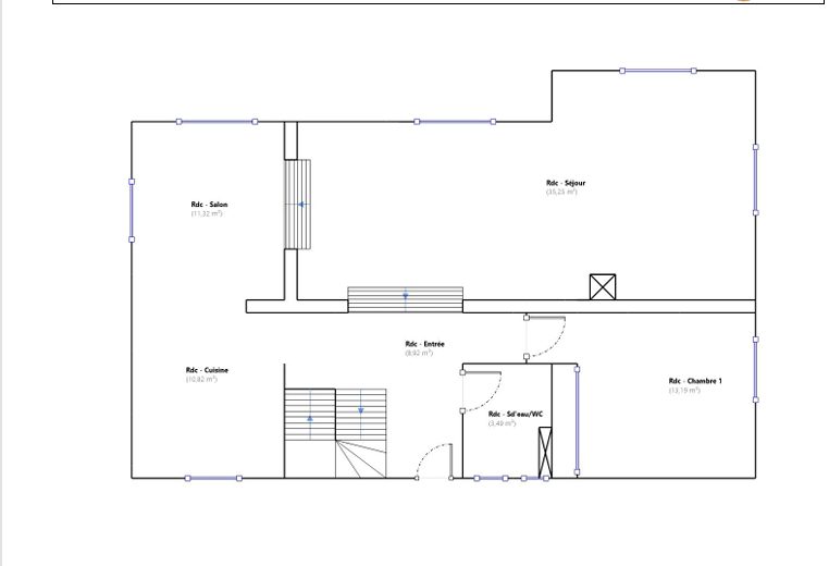
Détail des pièces
- Entrée: 8.92 m²
- Cuisine: 10.82 m²
- Salon: 11.32 m²
- Séjour: 35.25 m²
- Chambre1: 13.19 m²
- SDE/WC: 3.49 m²
- Mezzanine: 8.8 m²
- Chambre2: 12.88 m²
- Chambre3: 12.95 m²
- WC: 1.32 m²
- SDB: 12.37 m²
- Chambre4: 17.68 m²
- Chambre5: 17.09 m²
- Bureau: 8.03 m²
Bilan sur les performances énergétiques du bien
C
Date de réalisation : 07/06/2025Classe énergétique
C
129 kWh/m².an
Classe climatique
A
4 kg CO2/m².an
Estimation des coûts énergétiques annuels du logement
Entre 1530€ et 2120€ par an
Prix moyens de l'énergie indexés sur l'année 0 (abonnements inclus)
Prix moyens de l'énergie indexés sur l'année 0 (abonnements inclus)
Les informations sur les risques auxquels ce bien est exposé sont disponibles sur le site Géorisques : www.georisques.gouv.fr
Informations financières
Taxe foncière : 1 271 €
Charges mensuelles : 288 €
Honoraires à charges acquéreur
Prix de vente hors honoraires : 732 435 €
Honoraires : 26 565 €
3.63 % à charge acquéreur
Biens similaires aux alentours
Ce bien vous intéresse ?
Laissez un message
Votre contact
THEVENET Yan
Ornex