Caractéristiques
-
Surface 182.32 m²
-
Surface habitable 182.32 m²
-
Surface terrain 783 m²
-
Nombre de pièces 6
-
Nombre de chambres 4
-
Nombre de salles d'eau 1
-
Nombre de toilettes 2
-
Nombre de parkings 3
-
Nombre de parkings couverts 1
-
Piscine Oui
-
Nombre d' étages 2
-
Nombre de niveaux 2
-
Annee construction 1994
Description
Mandat 144
Nouveauté Pietrapolis Immobilier !
En exclusivité, située dans un secteur prisé d'Echenevex, au pied du Jura.
Maison d'une surface d'environ 182m² utile et développant 209m² habitable environ.
A 5 minutes des commerces et commodités, cette maison est au calme absolu.
Datant de 1994, elle est composée de la manière suivante :
Sous-sol aménagé :
-Un carnotzet de 28m², un espace cave à vins, une chambre (ou bureau), un espace de rangement / local technique.
Un garage de 21m² communiquant sur le jardin.
Un carport pouvant accueillir 2 véhicules.
Au rez-de-chaussée :
- Un hall distribuant un salon / salle à manger de 32m² avec un accès direct à la terrasse.
Une cuisine séparée communiquant avec la véranda et le salon.
La véranda, de 25m², véritable atout, elle crée un coin détente ou repas convivial, parfait pour recevoir en toute saison
Un cellier et un WC indépendant avec lave-mains complètent l'ensemble.
Au 1er étage :
- Trois chambres dont deux avec placards intégrés et accès balcon.
Une salle d'eau et un WC séparé.
L'extérieur est composé d'une piscine chauffée de 8,5m x3,9m.
Une terrasse carrelée, une pergola, un espace barbecue mettent en avant le jardin.
Pour plus de renseignements contactez Matthieu Vizioz au 06.73.96.73.21 ou m.vizioz@pietrapolis.fr
En exclusivité, située dans un secteur prisé d'Echenevex, au pied du Jura.
Maison d'une surface d'environ 182m² utile et développant 209m² habitable environ.
A 5 minutes des commerces et commodités, cette maison est au calme absolu.
Datant de 1994, elle est composée de la manière suivante :
Sous-sol aménagé :
-Un carnotzet de 28m², un espace cave à vins, une chambre (ou bureau), un espace de rangement / local technique.
Un garage de 21m² communiquant sur le jardin.
Un carport pouvant accueillir 2 véhicules.
Au rez-de-chaussée :
- Un hall distribuant un salon / salle à manger de 32m² avec un accès direct à la terrasse.
Une cuisine séparée communiquant avec la véranda et le salon.
La véranda, de 25m², véritable atout, elle crée un coin détente ou repas convivial, parfait pour recevoir en toute saison
Un cellier et un WC indépendant avec lave-mains complètent l'ensemble.
Au 1er étage :
- Trois chambres dont deux avec placards intégrés et accès balcon.
Une salle d'eau et un WC séparé.
L'extérieur est composé d'une piscine chauffée de 8,5m x3,9m.
Une terrasse carrelée, une pergola, un espace barbecue mettent en avant le jardin.
Pour plus de renseignements contactez Matthieu Vizioz au 06.73.96.73.21 ou m.vizioz@pietrapolis.fr
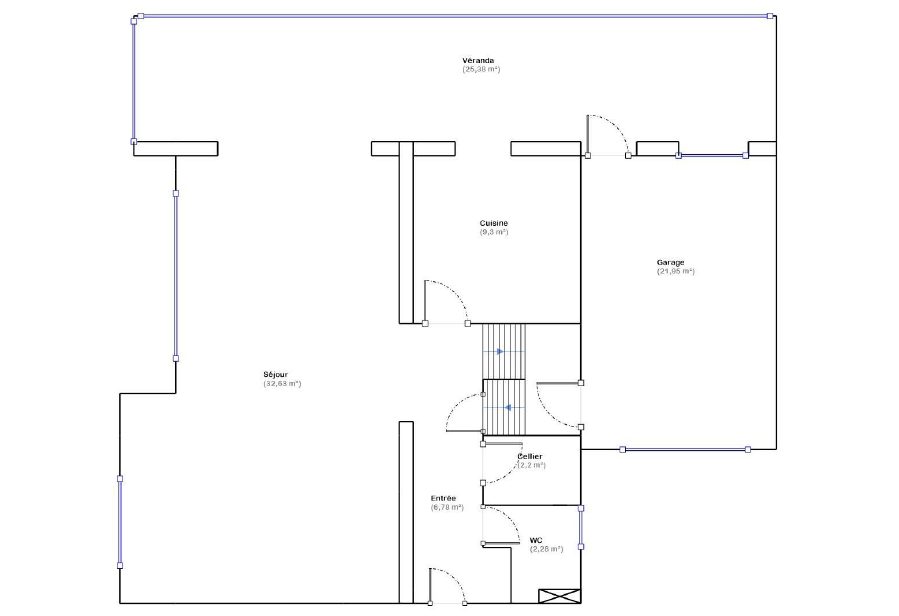
Détail des pièces
- Entrée: 6.78 m²
- Séjour: 32.63 m²
- Véranda: 25.38 m²
- Cuisine: 9.3 m²
- Cellier: 2.2 m²
- WC: 2.28 m²
- Mezzanine: 5.83 m²
- Salle d'eau: 6.2 m²
- WC: 1.32 m²
- Chambre 1: 16.49 m²
- Chambre 2: 14.4 m²
- Chambre 3: 9.93 m²
- Dégagement: 2.76 m²
- Pièce- Chambre: 9.08 m²
- Carnodze: 28 m²
- Cave: 4.38 m²
- Buanderie: 9.74 m²
- Garage: 21.95 m²
Bilan sur les performances énergétiques du bien
D
Date de réalisation : 28/03/2025Classe énergétique
D
235 kWh/m².an
Classe climatique
B
7 kg CO2/m².an
Estimation des coûts énergétiques annuels du logement
Entre 2570€ et 3520€ par an
Prix moyens de l'énergie indexés sur l'année 0 (abonnements inclus)
Prix moyens de l'énergie indexés sur l'année 0 (abonnements inclus)
Les informations sur les risques auxquels ce bien est exposé sont disponibles sur le site Géorisques : www.georisques.gouv.fr
Informations financières
Taxe foncière : 1 049 €
En copropriété
Nombre de lots : 2
Pas de procédures en cours
Biens similaires aux alentours
Prestige
Maison - 5 pièces - 255 m² - PRESTIGE
01630 Saint-Genis-Pouilly 825 000 €
Exclusif
Sous-offre
Maison - 5 pièces - 111 m²
74100 Ambilly 565 000 €
Exclusif
Maison - 6 pièces - 138 m²
01710 Thoiry 595 000 €
Exclusif
Sous-compromis
Maison - 4 pièces - 126 m²
01210 Ornex 600 000 €
Exclusif
Sous-compromis
Maison - 5 pièces - 138 m²
01630 Péron 699 000 €Ce bien vous intéresse ?
Laissez un message
Votre contact
VIZIOZ Matthieu
Ornex