Caractéristiques
-
Surface 195 m²
-
Surface habitable 195 m²
-
Surface terrain 1124 m²
-
Surface sejour 42 m²
-
Nombre de pièces 6
-
Nombre de chambres 4
-
Nombre de salles de bain 2
-
Nombre de toilettes 2
-
Nombre de parkings 3
-
Nombre de parkings couverts 2
-
Terrasse 1
-
Piscine Oui
-
Nombre d' étages 3
-
Nombre de niveaux 3
-
Annee construction 1981
-
Alarme Oui
Description
Mandat 179
En exclusivité, Pietrapolis Ornex vous propose cette Magnifique Villa de Grand Standing avec Vue Panoramique située à Vesancy
Découvrez cette somptueuse maison , récemment rénovée en 2024, offrant un cadre de vie exceptionnel alliant luxe et confort.
Avec environ 196m² répartis sur deux niveaux, plus un sous sol d'environ 150m2, cette propriété saura séduire les amateurs d'espaces généreux et de prestations haut de gamme.
Elle se compose comme suit :
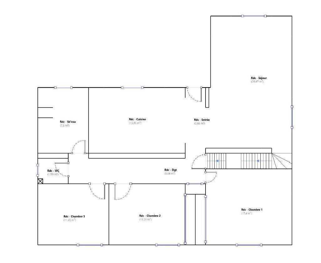
- Au rez-de-chaussée,:
Une entrée dessert un vaste séjour de 42 m², une cuisine aménagée et équipée, trois chambres, une salle de bain et WC.
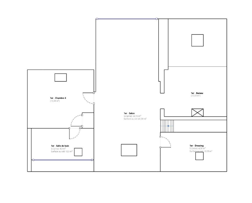
- Au premier étage :
Un salon avec vue panoramique sur les Alpes, un bureau, un dressing, une suite parentale ( chambre + salle de bains et wc)
- Au sous sol :
Un grand garage de 60 m2, une cave, une buanderie, un local et un cellier
L'extérieur est composé de la manière suivante :
Un jardin luxuriant de environ 1124 m², une terrasse ombragée , une piscine et un terrain de pétanque complètent le bien ainsi que 3 places de stationnement extérieur..
Ne manquez pas l'opportunité de vivre dans cette villa de prestige, où chaque détail a été pensé pour votre bien-être.
Cette propriété se trouve à proximité de toutes les commodités.
Contactez moi dès aujourd'hui pour organiser une visite et découvrir ce bien à Vesancy
Julie TROUVÉ 06.48.78.80.45 ou j.trouve@pietrapolis.fr ( RSAC 948186879)
Découvrez cette somptueuse maison , récemment rénovée en 2024, offrant un cadre de vie exceptionnel alliant luxe et confort.
Avec environ 196m² répartis sur deux niveaux, plus un sous sol d'environ 150m2, cette propriété saura séduire les amateurs d'espaces généreux et de prestations haut de gamme.
Elle se compose comme suit :
- Au rez-de-chaussée,:
Une entrée dessert un vaste séjour de 42 m², une cuisine aménagée et équipée, trois chambres, une salle de bain et WC.
- Au premier étage :
Un salon avec vue panoramique sur les Alpes, un bureau, un dressing, une suite parentale ( chambre + salle de bains et wc)
- Au sous sol :
Un grand garage de 60 m2, une cave, une buanderie, un local et un cellier
L'extérieur est composé de la manière suivante :
Un jardin luxuriant de environ 1124 m², une terrasse ombragée , une piscine et un terrain de pétanque complètent le bien ainsi que 3 places de stationnement extérieur..
Ne manquez pas l'opportunité de vivre dans cette villa de prestige, où chaque détail a été pensé pour votre bien-être.
Cette propriété se trouve à proximité de toutes les commodités.
Contactez moi dès aujourd'hui pour organiser une visite et découvrir ce bien à Vesancy
Julie TROUVÉ 06.48.78.80.45 ou j.trouve@pietrapolis.fr ( RSAC 948186879)
Détail des pièces
- Entrée: 3.86 m²
- Cuisine: 15.46 m²
- Salon/séjour: 26.47 m²
- Chambre 1: 17.4 m²
- Chambre 2: 13.26 m²
- Chambre 3: 11.45 m²
- Salle d'eau: 7.5 m²
- Wc: 1.59 m²
- Salon: 41.39 m²
- Chambre 4: 15.38 m²
- Salle de bains: 10.5 m²
- Dressing : 10.25 m²
- Bureau: 12.23 m²
- Dégagement: 9.68 m²
Bilan sur les performances énergétiques du bien
C
Date de réalisation : 08/06/2025Classe énergétique
C
151 kWh/m².an
Classe climatique
A
5 kg CO2/m².an
Estimation des coûts énergétiques annuels du logement
Entre 1870€ et 2590€ par an
Prix moyens de l'énergie indexés sur l'année 0 (abonnements inclus)
Prix moyens de l'énergie indexés sur l'année 0 (abonnements inclus)
Les informations sur les risques auxquels ce bien est exposé sont disponibles sur le site Géorisques : www.georisques.gouv.fr
Informations financières
Taxe foncière : 950 €
Biens similaires aux alentours
Ce bien vous intéresse ?
Laissez un message
Votre contact
Trouvé Julie
Ornex